Office/Consulting Rooms

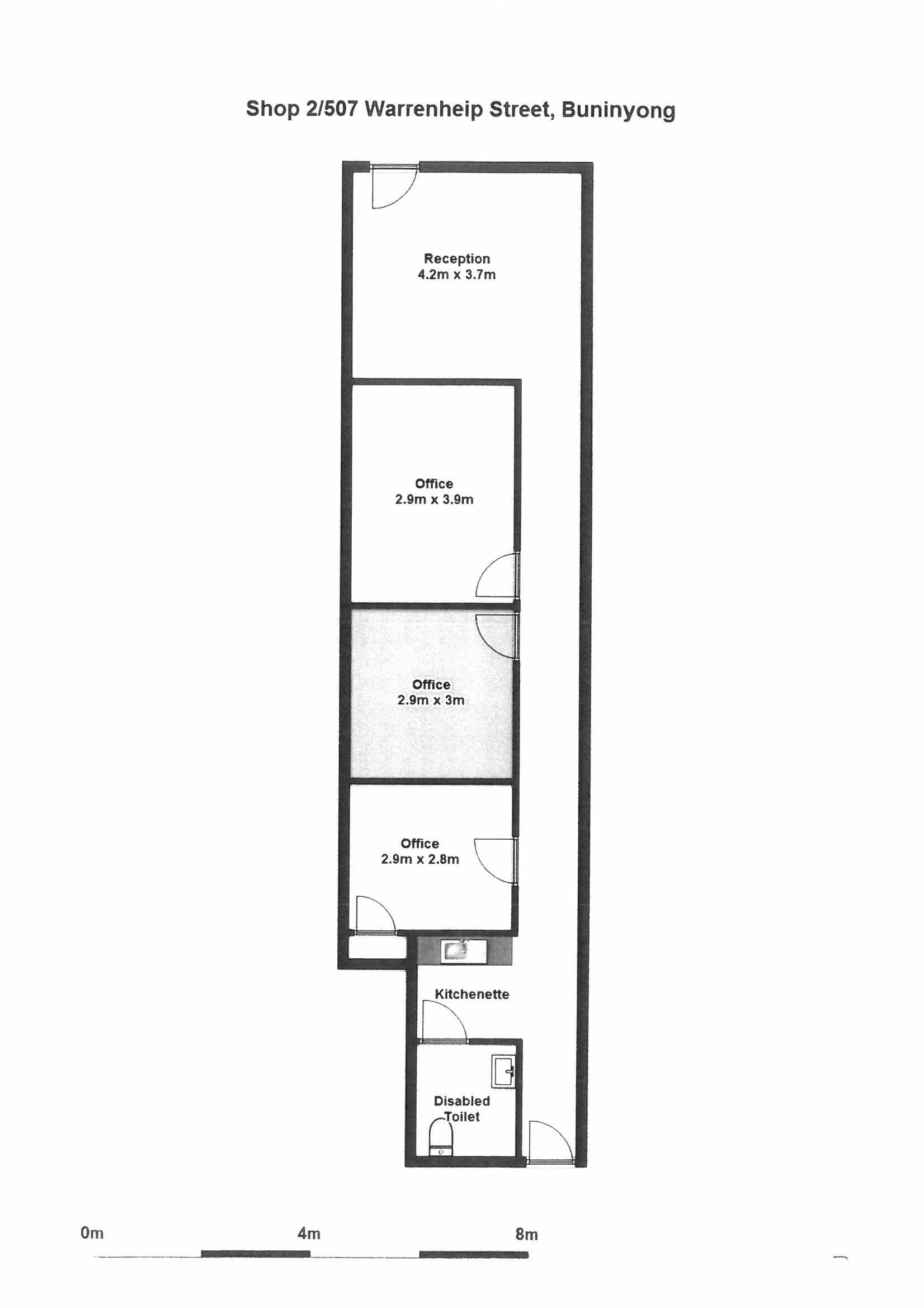
Set in the main street of Buninyong is this quality building offering reception, 3 offices, kitchenette, storage and disabled toilet. Office has NBN available and air-conditioners in each room.

2
Address Unit 2, 507 Warrenheip St, Buninyong
Price $24,800 P.A. plus GST & Outgoings
Property Type Commercial
Property ID 1179
Category Offices
Office Area 78m2

Agent Details

Ross Titheridge photo

Ross Titheridge

0418 543 638
View Profile