Central Multi-Purpose Building

Historic 3 level building recently refurbished in a highly desirable area of the Ballarat Train Station.

Suitable for offices, restaurant or café, conference meeting rooms, residential development or accommodation STCA

 

  • Currently Tenanted on a 3 year lease
  • 100 metres from Ballarat Train Station offering easy commute from Melbourne
  • 250 metres from New Government Office Hub
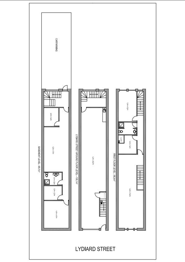
  • Ground Level 100m² open floor space, kitchenette
  • Upper Level 101m² Board Room, 2 offices, amenities
  • Lower Level 108m² spacious training area, amenities
  • Off Street car parking for 4 vehicles
  • Current Zoning: Commercial 1
4 315m2
Address 116 Lydiard St N, Ballarat Central
Price SOLD
Property Type Commercial
Property ID 1033
Commercial Listing Type Sale
Category Offices, Retail
Land Area 315m2
Office Area 309m2
Total Area 309m2

Agent Details

Ross Titheridge photo

Ross Titheridge

0418543638
View Profile