Ground Floor Office Space

Fully renovated floor with Landlord to fit out to tenants specification including new floor coverings and energy efficient LED lighting.

Great CBD location only 580 metres to Ballarat Train Station

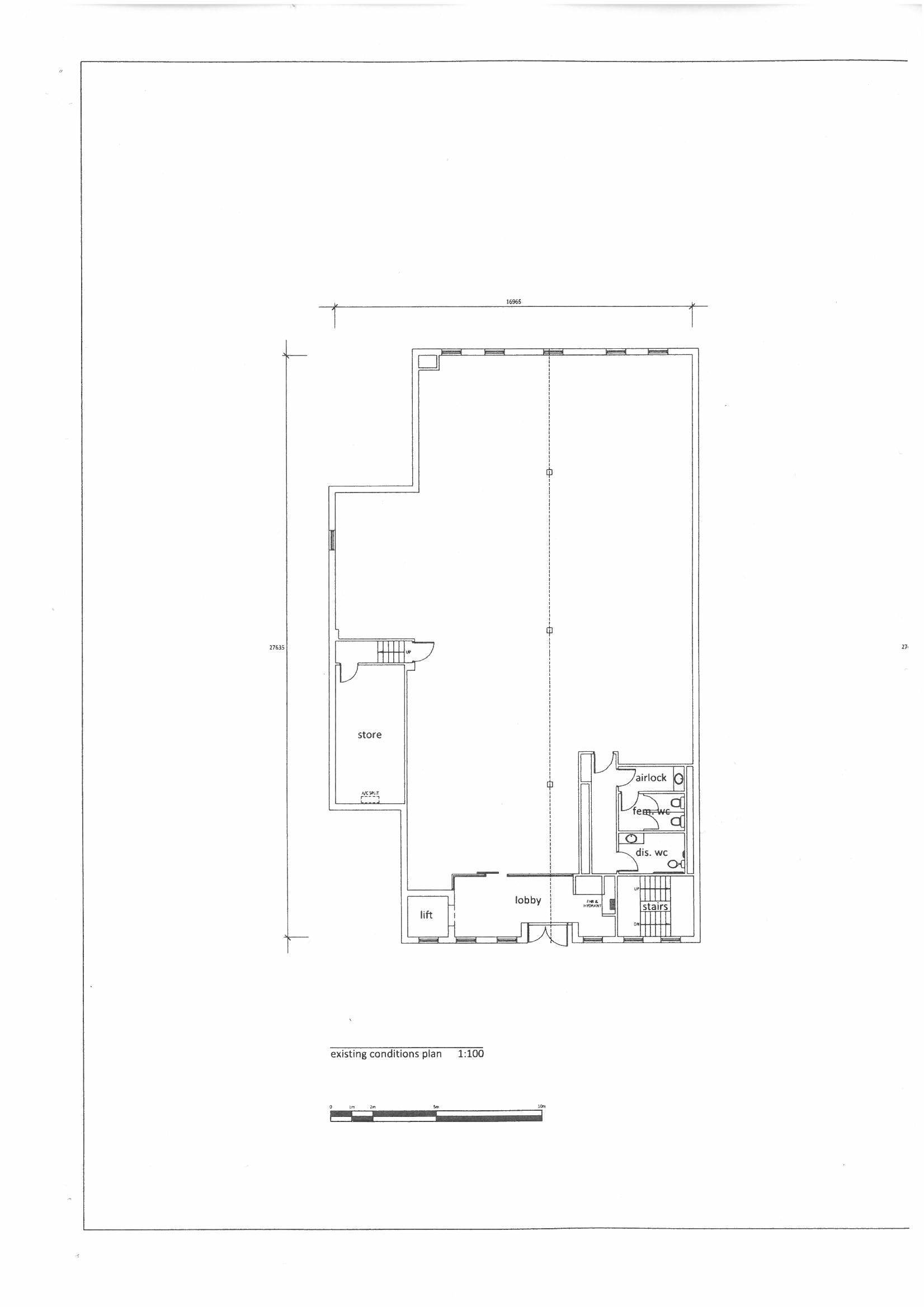
Window lobby entrance

Large open plan work space

Amenities include kitchenette and toilets

Total floor area 348.6m2

Ducted heating and cooling

Separate data room

4 secure basement car spaces

 

4
Address 51 Lydiard St S, Ballarat Central
Price $95,000 per annum plus GST & Outgoings
Property Type Commercial
Property ID 1068
Category Offices
Office Area 420m2

Agent Details

Ross Titheridge photo

Ross Titheridge

0418 543 638
View Profile