Leased

Set on a beautiful treed half acre life style...

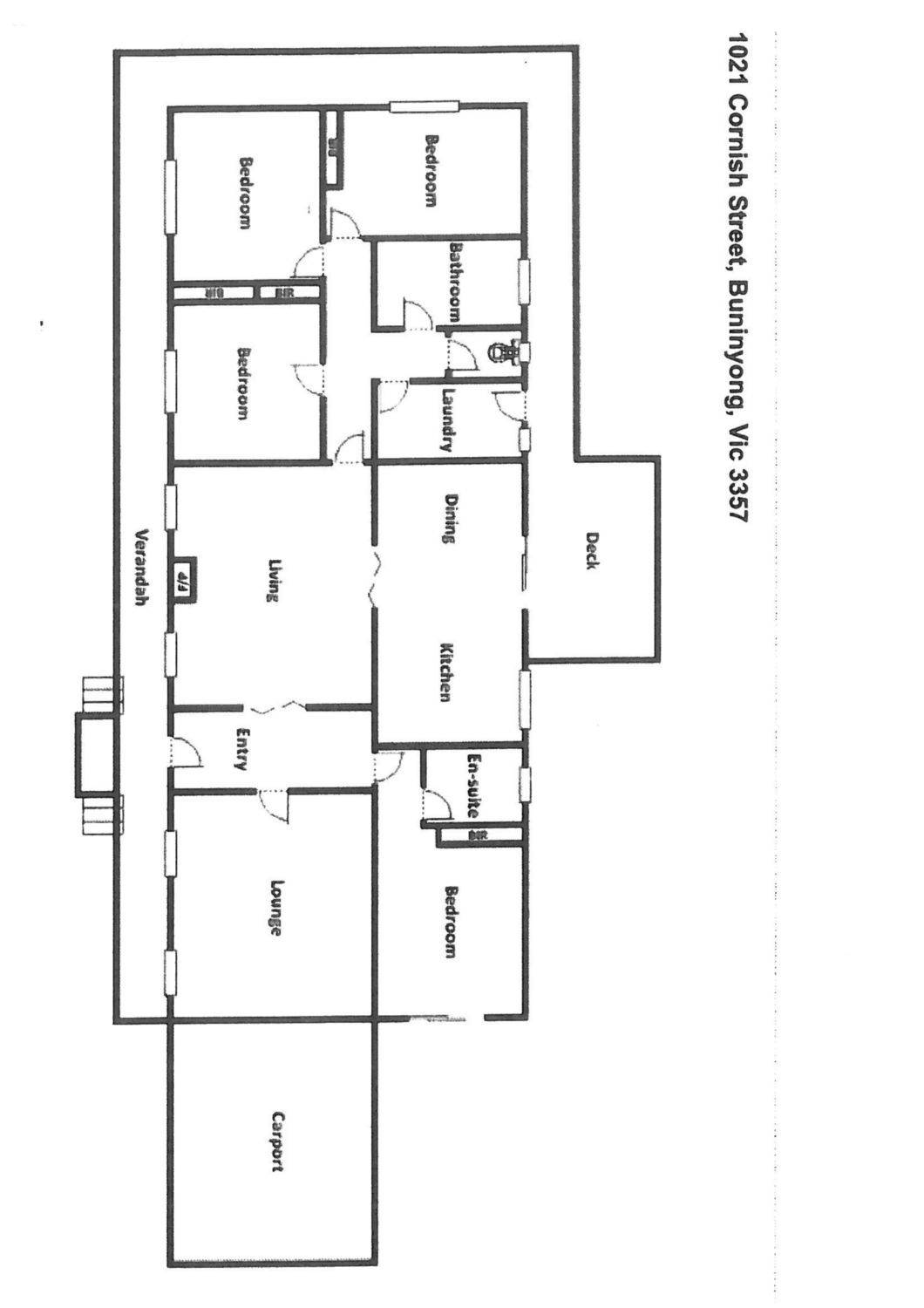
Offering quality lifestyle in the beautiful township of Buninyong is this lovely 4 bedroom family home.
The quality built home consists of separate entry, two spacious living areas, well appointed kitchen with electric cook top and wall oven and dining which leads out to entertaining deck. The master bedroom overlooks the fernery and has built in robes and en suite, the other 3 bedrooms are of good size all with BIR’s. The family bathroom has a bath and shower and there is a separate toilet. There is a double carport and a double garage with workshop and also a water tank. Other features include large wood heater to lounge room and wall heater to living room.
4 2 4
Available Leased
Address 1021 Cornish Street, Buninyong
Price $390 per week
Property Type Rental
Property ID 533
Category House

Agent Details

Ross Titheridge photo

Ross Titheridge

0418 543 638
View Profile