Sold

Affordable 4 BR Home

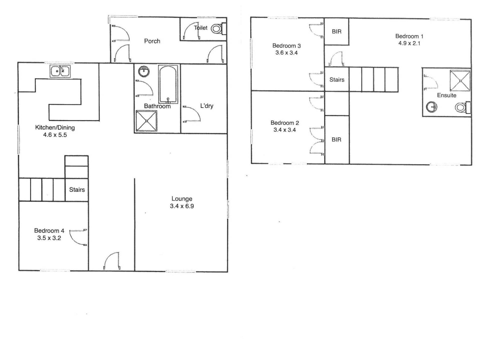
An opportunity for renovators to purchase a family home and finish to their own requirements. Comprising spacious living room, open kitchen-dining, 2 bathrooms, 4 bedrooms plus a study located off one of the bedrooms. Fittings include Rinnai energy saver heater, gas instant HWS and gas stove. Complete with double carport and shedding.
4 2 2
Address 31 Alexandra Street, Sebastopol
Price SOLD for $199,000
Property Type Residential
Property ID 570
Category House

Agent Details

Ross Titheridge photo

Ross Titheridge

0418 543 638
View Profile