Central Commercial Premises

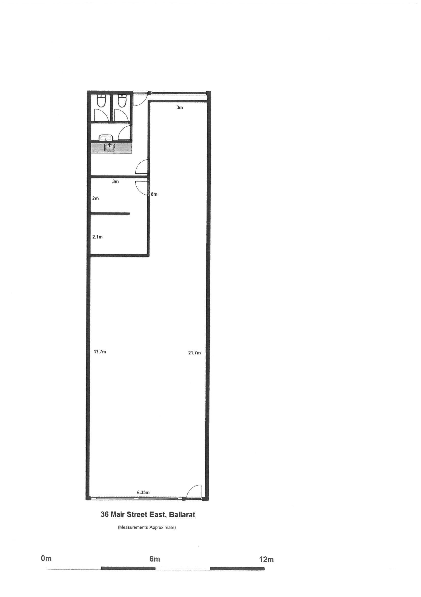
Generous retail space with excellent exposure to busy street. Air Conditioned, kitchenette and amenities. Floor area 140m² with rear access and 1 off street car park. Available 1st Feb 2019 Rental $23,000 P.A + GST & outgoings.

1
Address 36 Mair St E, Ballarat Central
Price $23,000 P.A + GST & outgoings
Property Type Commercial
Property ID 799
Category Retail
Office Area 140m2

Agent Details

Ross Titheridge photo

Ross Titheridge

0418 543 638
View Profile