Unique Residence with Panoramic Views

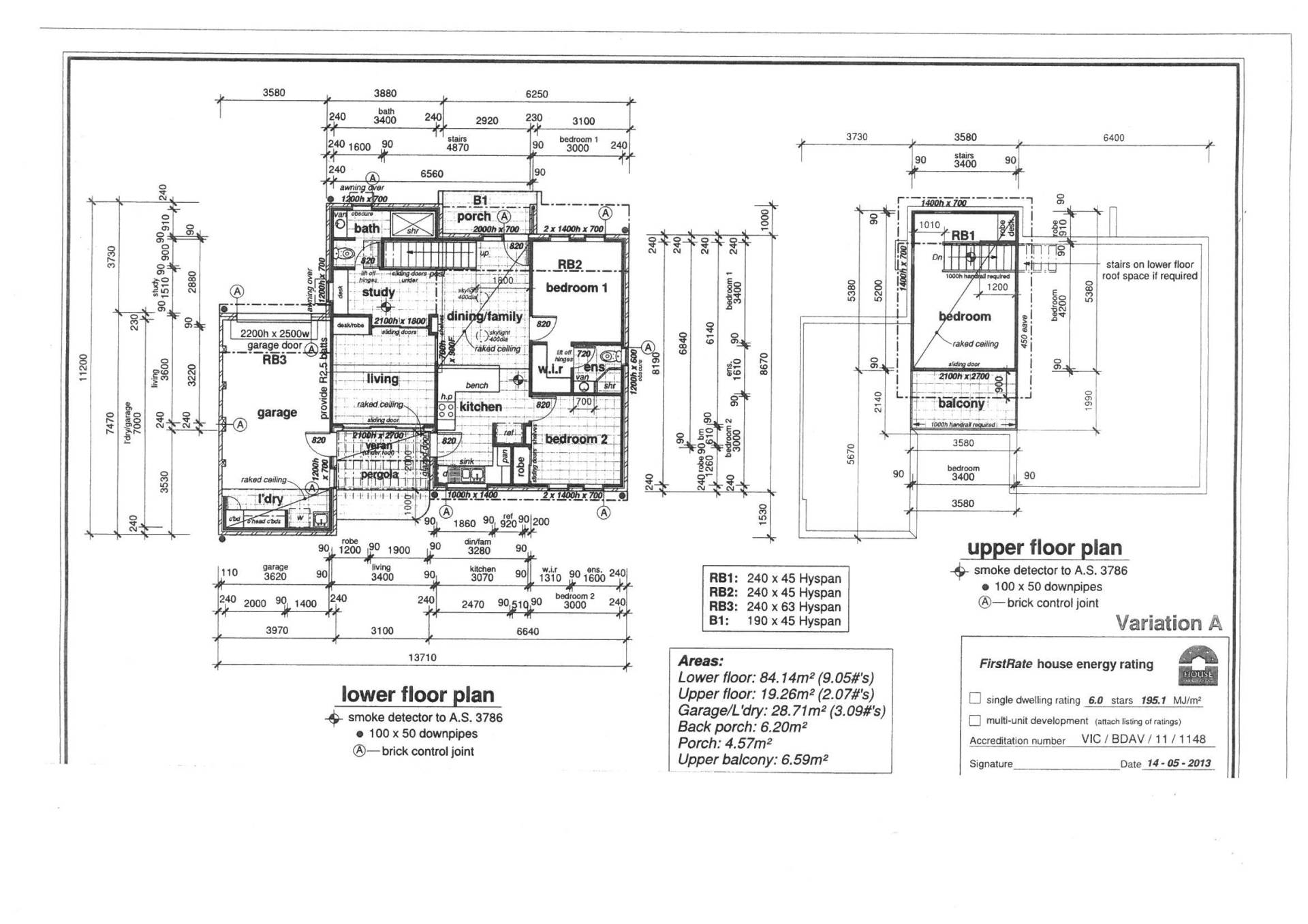
A very versatile home designed to be bright/airy and to capture the sun and the magnificent views to the south–west.  Set on a generous allotment of 619m² this lovely home offers the new owner a kitchen/dining with stainless steel cooking appliances, ample storage and large bench space which can double as a dining table, a separate tiled living room with access to an undercover outdoor terrace, study nook with a built in desk, master bedroom with a feature cathedral ceiling, walk in robe and storage space, second bedroom with a high ceiling, built in robe and storage, accessible second bathroom offering shower, toilet/powder room, and under stair storage space.  The versatile upper level accessed from the carpeted staircase can be either a third bedroom or another living room offering stunning panoramic views from the balcony accessed from the large sliding door/windows, the built in robe and storage adds to the versatility of this room.  There is a single garage and utility-laundry accessible  from the covered terrace and there is parking also available in the front garden.  Other features include a rainwater tank with electric pump, quality NBN, 6 star rating and a bus stop 150m away.  A home with a difference complete with an established garden, front fence and being located at the end of a court or close offers added safety for a young family.

Features

Balcony Terrace/Paved Outdoor entertainment area
3 2 2
Address 8a Saunders Close, Mount Pleasant
Price SOLD
Property Type Residential
Property ID 819
Category House

Agent Details

Ross Titheridge photo

Ross Titheridge

0418 543 638
View Profile