Leased

2 Bedroom Unit In A Fantastic Wendouree Location

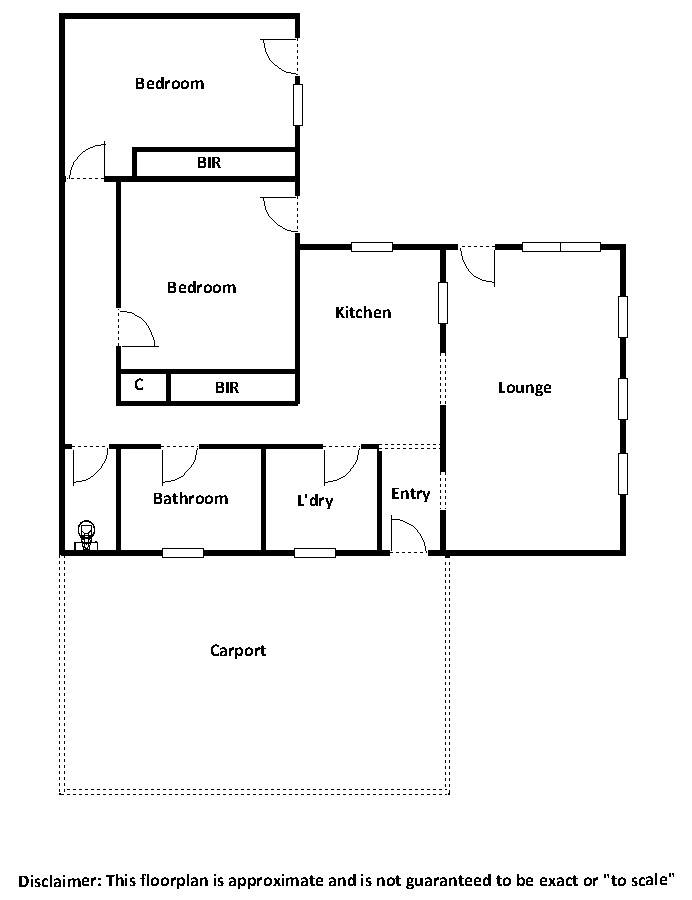
Situated within walking distance to Lake Wendouree and across the road from Medical precinct with supermarket and shops close by.  Spacious and light filled 2 bedroom unit.  Separate lounge room off the entry, kitchen with ample cupboards and bench space, both bedrooms are a great size and have built in robes, separate laundry, bathroom with bath and shower and a separate toilet.  Gas heater, split system, quality window and floor coverings make this a very comfortable home.  There is a single carport and small storage shed, bus stop on street at front of unit.
2 1 1
Available Leased
Address Unit 5, 1106 Howitt St, Wendouree
Price $230.00 per week
Property Type Rental
Property ID 950
Category Unit

Agent Details

Ross Titheridge photo

Ross Titheridge

0418 543 638
View Profile